
.png)
Para empresas que prestam serviços de corte plasma / laser, duas das etapas principais de trabalho é a programação de corte, e o corte propriamente dito.
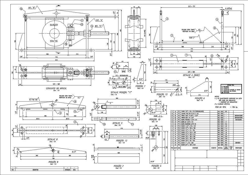
Porem pra fazer a programação, o software precisa do desenho de corte da peça, geralmente no formato DWG ou DXF, com os desenhos isolados e sem falhas de geometria.

Em grande parte dos casos esses desenhos são recebidos de forma desorganizadas ou em outros formatos. Como por exemplo em um desenho de montagem, ou em formatos PDF.
Isso acaba se tornando um obstáculo para o processo, por exigir tempo e recursos.
Nos da Sheet Metal nos planejamos para sermos um facilitador nesse processo.
Com recursos de softwares profissionais e uma equipe com conhecimento técnico especializado, nos fazemos esse serviço de forma mais rápida e organizada.
Tendo como meta principal a qualidade do serviço, e um envio mais rápido.

Para quem trabalha com desenhos fazer um desenho de uma peça no software, na maior parte das vezes é relativamente fácil. O que dificulta é entender, interpretar e reproduzir de forma satisfatória o desenho. E esse é o nosso maior desafio!
Para podermos vencer esse desafio, utilizamos o máximo de ferramentas que nosso mundo conectado nos disponibiliza.
Entre em contato para orçamentos :
atendimentol@sheetmetal.com.br
Ou WhatsApp: (43) 9 9181-7183
Tipos de arquivos comuns para orçamento:
-
DWG / DXF
-
PDF
Veja nossa galeria de exemplos de recebimento e como os arquivos são preparados e enviados, a baixo.




Nossas formas de pagamentos são:
-
À vista com pix em pacotes de desenhos
-
Plano de cobrança mensal para clientes cadastrados
-
Cadastre-se com a gente, e ganhe um teste gratuito sem compromisso, para conhecer melhor nossos serviços.
-
Atendimento prioritário
-
Pasta compartilhada no Drive
-